Łomianki

Dom na sprzedaż

Opis nieruchomości

Na sprzedaż dom wolnostojący 153,36 m2
Kępa Kiełpińska gmina Łomianki.


Na sprzedaż nowoczesny dom wolnostojący o powierzchni użytkowej 153,36m2 , położony na dużej działce  1386m2 w miejscowości Kępa Kiełpińska w gminie Łomianki niedaleko Warszawy, w zielonej i spokojnej okolicy. Idealna propozycja dla osób ceniących ciszę, naturę i komfort przestrzeni.

Cena: 1 490 000 zł

Podstawowe informacje:
  • liczba kondygnacji 2, budynek z 2018 r.:

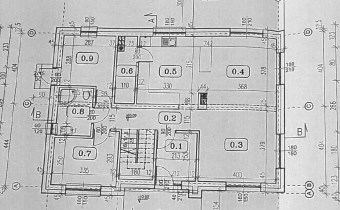
 PARTER:
  • pokój  
  •  duży salon połączony z jadalnią i dużą kuchnią około 43,75m2,
  •  hol wejściowy 5,32m2,
  •  korytarz w nim klatka schodowa drewniana 11,23m2,
  •  łazienka 4,86m2,
  •  garderoba 8,95m2,
  • kotłownia/pralnia 9,03m2, 

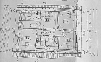
 PODDASZE:
  • 4 pokoje: 9,91m2, 11,96m2,11,29m2, 10,5m2
  • (1 pokój ma osobną łazienkę i garderobę 4,88m2, 6,43m2),
  • korytarz 6,29m2,
  • łazienka 5,14m2

Na poddaszu łazienki i garderoba stan do wykończenia, co daje możliwość ich własnej aranżacji.
 
Podłogi w Pokojach i korytarzach wyłożone w panelach winylowych, zaś pozostałe pomieszczenia (kuchnia, garderoba, spiżarnia, łazienka, hol wejściowy, kotłownia/pralnia wyłożone gresem.
 

MEDIA:

GAZ
Dom ogrzewany piecem gazowym -  gazem GASPOL – nowoczesne, bezobsługowe i niewidoczne rozwiązanie (butla na działce), Gaz uzupełniany przez firmę zewnętrzną GASPOL, bez konieczności ingerencji ze strony właściciela, brak opłat za przesył. 

 
Woda: przyłącze wodociągowe.

Kanalizacja : przydomowa oczyszczalnia

Przyłącze energetyczne: PGE

Lokalizacja:

Nieruchomość położona w spokojnej okolicy. W pobliżu lasy i tereny spacerowe-idealne miejsce do życia dla rodzin oraz osób szukających wytchnienia od miejskiego zgiełku, z jednoczesnym dobrym dojazdem do Łomianek i Warszawy.

Parametry techniczne domu:
  • powierzchnia zabudowy 112, 01m2,
  • powierzchnia całkowita 223,65m2,
  • powierzchnia użytkowa 153, 36m2,
  • kubatura 697,66m2,
  • wysokość budynku 7,79m2.

Budynek zgłoszony do użytkowania


OPIS TECHNICZNY BUDYNKU:
Ławy fundamentowe, żeberkowe z betonu żwirowego klasy C16/20 (B20).
Izolacja domu przeciwwilgociowa pozioma ław fundamentalnych- podwójna papa na lepiku. Ściany nośne zewnętrzne z pustaków ceramicznych-grubość 25 cm i styropian – grubość 20 cm.
Ściany wewnętrzne nośne murowane z pustaków ceramicznych-grubość 25 cm i ściany działowe z cegły kratówki- grubość 12 cm.
Fundamentowe ściany- wylewane na mokro z betonu C16/20 9B 20).
Płyty żelbetonowe- grubość 14 cm (strop) nad parterem, zaś poddasze (strop) drewniany obudowany płytami-grubość 12,5 mm, a pozostała część metalowa ocieplona wełną mineralną w układzie dwuwarstwowym.
Kominy posiadają system Schiedel. Wieńce, podciągi, nadproża są żelbetonowe, wylewane na mokro. Dom posiada dach dwuspadowy z kątem nachylenia połaci 35*. Więźba dachowa drewniana o konstrukcji płatwo- jętkowej (krokwie 8x18 cm, murlata 14x14 cm, jętki 8x18cm). Wszystkie elementy drewniane zaimpregnowane przeciwgrzybicznie i zabezpieczone do stopnia nie rozprzestrzeniania ognia NRO oraz niezapalności.
Dach pokryty dachówką ceramiczną na łatach i kontrłatach drewnianych.
Rynny i rury spustowe z blach stalowej powlekanej.
Tynki wewnętrzne cementowo-wapienne, zaś zewnętrzne cienkowarstwowe- mineralne.
Stolarka zewnętrzna PCV i drewniana.


ZAPRASZAM NA PREZENTACJĘ NIERUCHOMOŚCI.


Więcej informacji pod tel. 534080834


Wszelkie podane  informacje nie posiadają oferty w rozumieniu kodeksu cywilnego.

 

Nota prawna

Opis oferty zawarty na stronie internetowej sporządzany jest na podstawie oględzin nieruchomości oraz informacji uzyskanych od właściciela, może podlegać aktualizacji i nie stanowi oferty określonej w art. 66 i następnych K.C.

Szczegóły oferty

Symbol oferty INK-DS-8531
Powierzchnia 223,65 m²
Powierzchnia użytkowa 153,36 m²
Powierzchnia działki 1 386 m²
Liczba pokoi 6
Rodzaj domu jednorodzinny
Stan prawny Własność
Okna PCV
Pozwolenie na użytkowanie tak
Gaz na działce
Woda ciepła - miejska
Dojazd droga utwardzona
Ogrzewanie C.O. GAZOWE
Prąd jest
Kanalizacja własna oczyszczalnia

Pomieszczenia

Rodzaj kuchni aneks kuchenny - połączony z salonem

Kalkulator kredytowy

PLN
%
Wysokość raty

Kalkulator kosztów

PLN
PLN
PLN
PLN
PLN
PLN
%
PLN
Podatek od czynności cywilno-prawnych
Taksa notarialna (opłata notarialna)
VAT od taksy notarialnej (opłaty notarialnej)
Wniosek do WKW
VAT od wniosku do WKW
Prowizja agencji nieruchomości
VAT od prowizji agencji nieruchomości
Wypisy aktu notarialnego - około
RAZEM (cena + opłaty)

Napisz do nas

Proszę wypełnić to pole
Proszę wypełnić to pole
Proszę wypełnić to pole
Proszę wypełnić to pole
Trwa wysyłanie...

Ta strona wykorzystuje pliki cookies w celach statystycznych oraz w celu dostosowania naszych serwisów do indywidualnych potrzeb klientów. Zmiany ustawień dotyczących plików cookie można dokonać w dowolnej chwili modyfikując ustawienia przeglądarki. Korzystanie z tej strony bez zmian ustawień dotyczących cookies oznacza, że będą one zapisane w pamięci urządzenia.

rozumiem